Νέα πρόταση χρηματοδότησης, που αφορά τον λιμένα Αστακού, μέσω του Δημοτικού Λιμενικού Ταμείου Ξηρομέρου, στα πλαίσια της από 25.10.2023 (Α.Π. 19636) Προκήρυξης του Προγράμματος κρατικής ενίσχυσης «Αναβάθμιση Τουριστικών Λιμένων» του Υπουργείου Τουρισμού.
Τίτλος προτεινόμενης Πράξης: «Αναβάθμιση Τουριστικού Καταφυγίου Αστακού “έξυπνη”, “πράσινη” και αναπτυξιακή τουριστική υποδομή».
Μια πρόταση που ξεκίνησε η ωρόμανση της με την προηγούμενη διοίκηση του Λιμενικού Ταμείου και ολοκληρώσαμε με την νέα διοίκηση.
Στόχος είναι η μετεξέλιξη του λιμένα Αστακού σε Τουριστικό Λιμένα, με βάση το πρότυπο “Εco-Ports”.
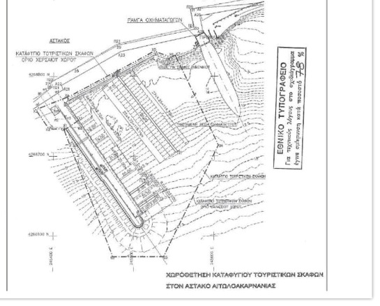
Η πρόταση του Επενδυτικού / Επιχειρησιακού Σχεδίου, αφορά παρεμβάσεις στην χωροθετημένη ως Τουριστικό Καταφύγιο (ΦΕΚ 209, 29.12.2006) μαρίνα στον Αστακό Αιτωλοακαρνανίας.
Η παρούσα πρόταση επιστρατεύει την εμπειρία και το περιεχόμενο της έννοιας της «Γαλάζιας Οικονομίας», ώστε να συμπληρώσει το πλήθος των πρωτοβουλιών και δράσεων που ήδη έχουν αναληφθεί για την οικονομική ανάπτυξη της ευρύτερης περιοχής.
Οι λιμενικές υποδομές και η χρήση τους, η ανάπτυξη του θαλάσσιου τουρισμού, η ανάδειξη θαλάσσιων περιοχών ιδιαίτερου ενδιαφέροντος, η υπόδειξη δράσεων με στόχο την ενεργοποίηση ή την διεύρυνση της επισκεψιμότητας της περιοχής, συγκροτούν μια δέσμη βραχυπρόθεσμων και μεσοπρόθεσμων δράσεων που θα συμβάλλουν άμεσα στην βελτίωση των κοινωνικών και οικονομικών δεικτών ολόκληρης της περιοχής.
Συνολικά, το Επενδυτικό / Επιχειρησιακό Σχέδιο φιλοδοξεί να συμβάλλει με ολοκληρωμένες δράσεις και προτάσεις στην ευρύτερη αναζωογόνηση της οικονομίας του Δήμου Ξηρομέρου (πρώην Δήμος Αστακού), λαμβάνοντας την σημερινή κατάσταση ως ευκαιρία μετασχηματισμού του συνόλου των υποδομών και παραγωγικών διαδικασιών που συνιστούν την έννοια «Γαλάζια Οικονομία».









